
Carport Conversion & Accessible Home Renovation
Project: Residential Renovation & Addition
Location: Oakland Park, Florida
Size: ±1,040 SF
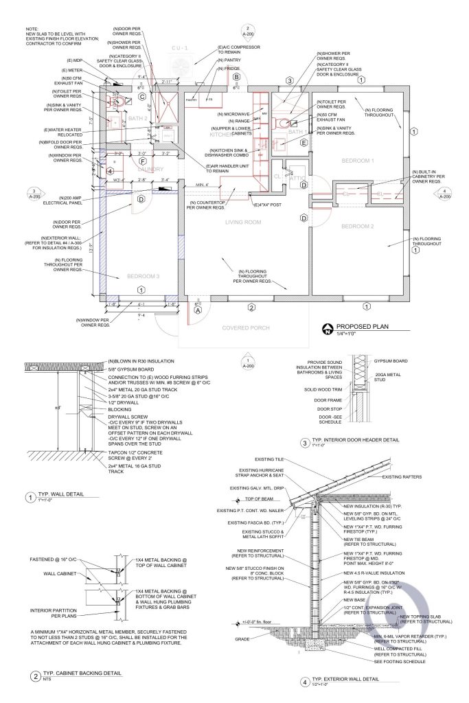
This project involved the conversion of an existing carport into conditioned living space and a full interior renovation of a single-family residence, designed to improve functionality, accessibility, and overall livability.
A key objective of the project was to create a wheelchair-accessible home environment, ensuring that the redesigned spaces support the daily needs of a person with mobility challenges. The design transformed an underutilized carport into a new bathroom and laundry area, while the interior was reconfigured into a three-bedroom, two-bath layout with an updated kitchen and improved circulation.
Special attention was given to clearances, circulation paths, and ease of movement throughout the home, with spatial planning strategies that promote barrier-free access and functional independence. Bathrooms, doorways, and key living areas were carefully considered to accommodate accessibility requirements while maintaining a cohesive residential design.
Architectural work included the development of demolition and proposed plans, reconfiguration of interior partitions, and the design of a new enclosure that integrates seamlessly with the existing structure. Openings were positioned to enhance natural light, ventilation, and spatial continuity, while finishes and built-in elements were coordinated with both aesthetic and functional needs in mind.
The project was carried through to a complete set of permit-ready construction drawings, with close coordination across structural and MEP systems to ensure constructability and clarity. This integrated approach resulted in a well-resolved and highly buildable design, minimizing field conflicts and supporting a smooth construction process from permitting through execution.
This project demonstrates a thoughtful and inclusive approach to residential design, where accessibility is seamlessly integrated into the architecture rather than treated as an afterthought. By balancing user-centered design, spatial efficiency, and construction practicality, the result is a home that not only meets functional requirements but also enhances quality of life delivering a space that is accessible, adaptable, and built to support long-term independence.


