
Commercial Canopy Column Reinforcement & Structural Design
Project: Canopy Structure, Screen Wall & Ceiling Framing for a Commercial Retail
Location: Major Department Store, Coral Square Mall in Coral Springs, FL
Size: Large-Format Commercial Department Store
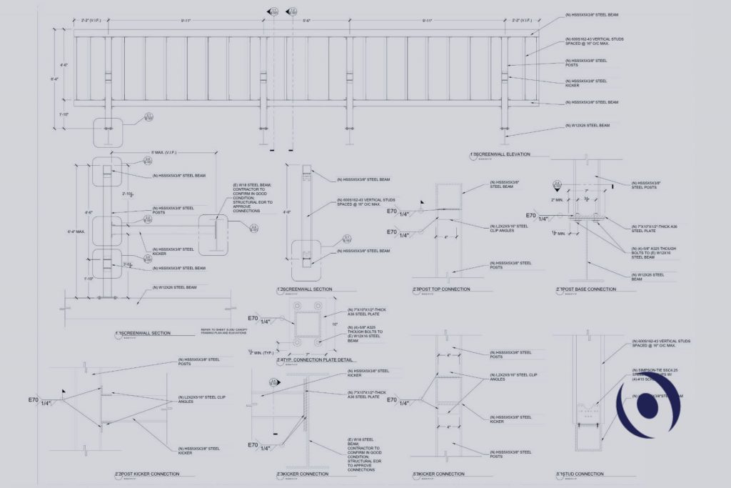
NOHMIS was engaged as the structural engineer of record for a commercial canopy renovation at the Coral Square Mall in Coral Springs, FL. Our scope covered the full structural design of a new exterior canopy system, a structural screen wall, and interior cold-formed steel ceiling framing, all designed and delivered as signed and sealed construction documents for permitting in Broward County.
As part of our process, we conducted a full 3D structural analysis using STAAD.Pro on the existing steel columns supporting the canopy. The analysis revealed that the columns did not meet South Florida’s lateral drift requirements under 170 MPH wind loading, a deficiency that would not have been caught without a proper engineering review.
We designed a custom steel plate column reinforcement system — encasing each existing column with structural A36 steel plates on all four sides, bolted and welded for full composite action. This solution was structurally superior to a full column replacement and significantly less disruptive to the construction schedule.
The Outcome
The project was permitted and cleared for construction with no structural conflicts in the field. The column deficiency was resolved before breaking ground, eliminating the risk of a failed inspection or a costly mid-construction redesign. Every structural system was coordinated into one complete, buildable package.
In South Florida’s high-wind environment, lateral drift governs canopy structures more than most teams expect. A standard visual check won’t catch it, but a proper structural analysis will.





