
Electrical Design – Commercial Warehouse Tenant Buildout
Project: Slow Burn Theatre Warehouse
Location: Oakland Park, Florida
Size: ~3,650 SF Commercial Warehouse / Office Space
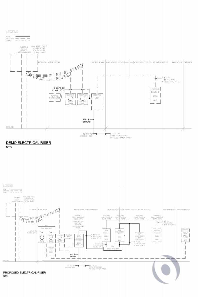
This project involved the electrical design of a commercial warehouse tenant buildout, including power distribution, service modifications, and dedicated equipment circuits for industrial woodworking equipment. A complete electrical plan set for permitting was developed to support the electrical infrastructure for a 3,650 square foot warehouse and office space.
The design included a new 200A electrical distribution panel and wireway system to support specialized fabrication equipment such as a CNC router, table saws, band saws, compressors, and welding equipment. Dedicated circuits and disconnects were designed to safely supply each machine while meeting NEC electrical design requirements.
Service upgrades were also designed within the building’s meter room, including the installation of a new electrical meter, 400A wireway, and 200A main service disconnect to provide power to the tenant space. Electrical load calculations were performed to determine system capacity and verify proper service sizing.
The project also included electrical load analysis, panel schedules, equipment schedules, conduit routing, and demolition and proposed electrical riser diagrams. Existing lighting systems and office electrical infrastructure were evaluated and maintained as part of the design.


