
Residential Addition, Garage Conversion & Full Interior Renovation
Project: Residential Addition, Garage Conversion & Full Interior Renovation
Location: Boca Raton, Florida
Size: Single-Family Residence | ±2,701 SF
Getting a residential renovation through the permitting process without delays comes down to one thing: how well the engineering was done before the plans were ever submitted. This Boca Raton residential addition and garage conversion is a clear example of what fully coordinated, permit-ready architectural and engineering design looks like in practice.
A Boca Raton Home Transformed
The scope was substantial. A residential addition enclosed the existing open front entryway into a defined foyer. The existing garage was converted into two new bedrooms and a full bathroom. The master bathroom was completely redesigned with a new walk-in shower and a separate toilet room. A bathtub was added to the guest bathroom where one had never existed. The driveway was expanded, the laundry room was reconfigured, and interior finishes, lighting, and layouts were updated across the principal living areas of the 2,701 SF single-family home.
NOHMIS provides full-service Architecture, Structural & MEP Engineering for residential and commercial projects across South Florida. On this Boca Raton project, every discipline was designed under one coordinated process, from the initial zoning feasibility analysis through the final permit-ready construction documents. The zoning analysis confirmed the addition kept the lot’s impervious coverage at 47%, within code and without triggering a variance request before a single line was drawn.
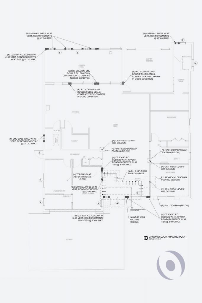
Structural Engineering Built for South Florida Conditions
Residential additions in South Florida require structural engineering that accounts for high-velocity hurricane wind zones. The front entryway addition introduced new CMU walls with reinforced vertical bars, new reinforced concrete tie beams, new concrete and HSS steel columns, and a new footing system with deadman footings anchored below grade. The existing tie beam was modified with prefabricated steel saddle plates to carry new roof truss loads. Every structural connection was designed for a roof uplift pressure, based on a 170 MPH ultimate wind speed under the 2023 Florida Building Code.
The garage conversion required a purpose-built interior wall assembly with R-30 insulation, engineered specifically to meet Florida’s energy code requirements for newly conditioned living space. A structural topping slab was designed to raise the garage floor to the home’s finished elevation. Impact-rated aluminum windows were product-approved throughout the entire home to align with the structural wind design.
MEP Engineering That Found Real Savings
The mechanical design on this project delivered a finding that directly protected the budget. Heat load calculations confirmed that the three existing air handling units had sufficient capacity to serve the newly converted bedrooms and bathroom without adding any new equipment. That result came from engineering analysis, not a field assumption. New ductwork, returns, and exhaust fans were then designed to properly condition and ventilate the converted spaces.
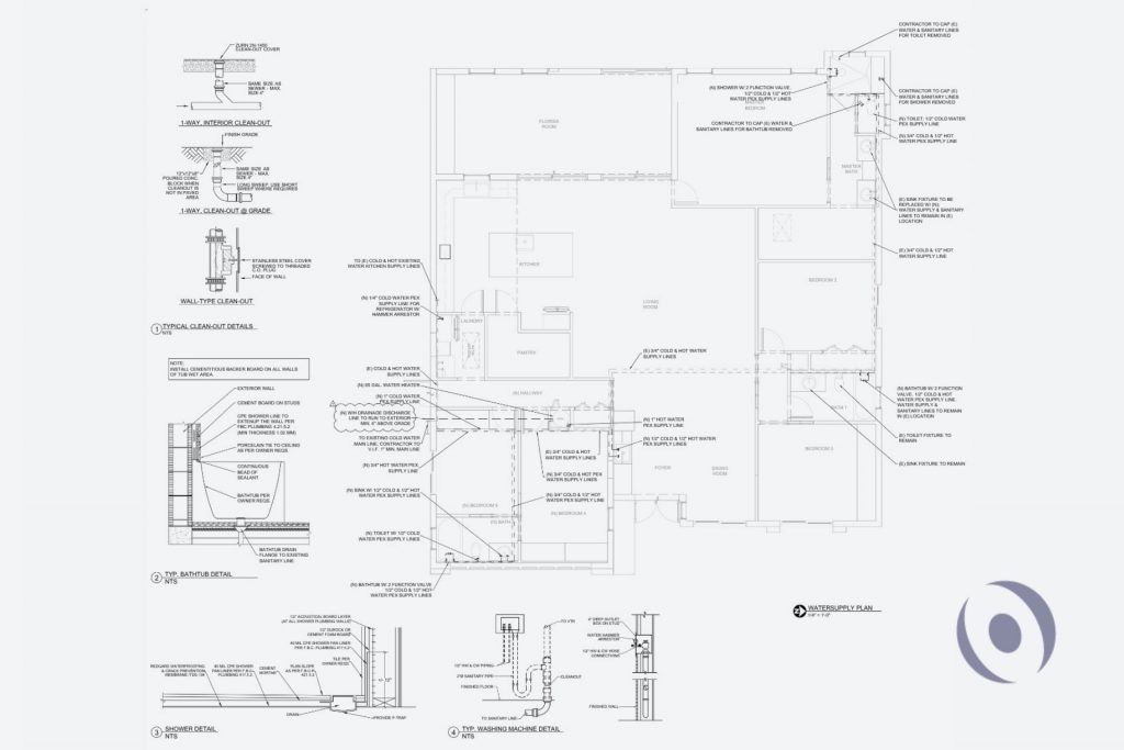
The full plumbing redesign introduced a new PEX water supply system, a new 65-gallon electric water heater, and new sanitary lines that required engineered slab saw-cut and repair details. The electrical design covered new circuit additions, AFCI and GFCI protections, LED lighting throughout the home, panel schedule updates, and fully circuited smoke and carbon monoxide detectors in every room.
One Set of Plans. Every Question Already Answered.
When the building, structural, and plumbing departments came back with review comments, every one of them was resolved in a single response cycle per department. Not because the comments were simple, but because the answers were already in the drawings. The documents were thorough enough that each reviewer’s question pointed directly to a sheet, a detail, or a calculation that had already addressed it. No redesign. No resubmissions. No delays passed on to the build.
The contractor received a fully coordinated set of permit-ready construction documents with every discipline consistent from the site plan through the MEP details. No conflicts between architectural intent and structural design. No plumbing rough-ins that contradict the floor plan. No field questions that should have been answered on paper before the build started.
Built to Last in South Florida
Two new permitted bedrooms, a shared bathroom, a renovated master suite, a new front entry with double impact glass doors, an expanded paver driveway, impact windows throughout, and fully upgraded MEP systems designed for long-term South Florida performance. All designed and engineered by one firm, serving projects across Broward, Palm Beach, and Miami-Dade Counties.
When the scope is this layered, the difference between a smooth build and a costly one lives entirely in the quality of the documents. That is the standard we hold on every project. If your next project needs that level of coordination, visit us at www.nohmis.com.















