
Structural Inspections for Residential Construction
Project: Private Residential Structural Modification
Location: Coastal Residential Property
Size: Single-Family Residence
We provide refined, detail-oriented structural inspection services for high-end residential construction and renovation projects, ensuring every structural element is executed with precision, safety, and full compliance with approved engineering documents.
For this project, our team performed multi-phase inspections throughout construction, verifying that all work was installed in accordance with structural drawings, field conditions, and applicable building codes.
Inspections included reinforced concrete elements such as grade beams, slabs-on-grade, stairs, and courtyard structural components, with careful verification of reinforcement placement, bar spacing, lap splices, anchorage, and required concrete cover prior to and during placement.
We conducted field inspections of deep foundation systems, including pin piles supporting structural elements and retaining walls, confirming embedment, alignment, and proper load transfer into the supporting soils.
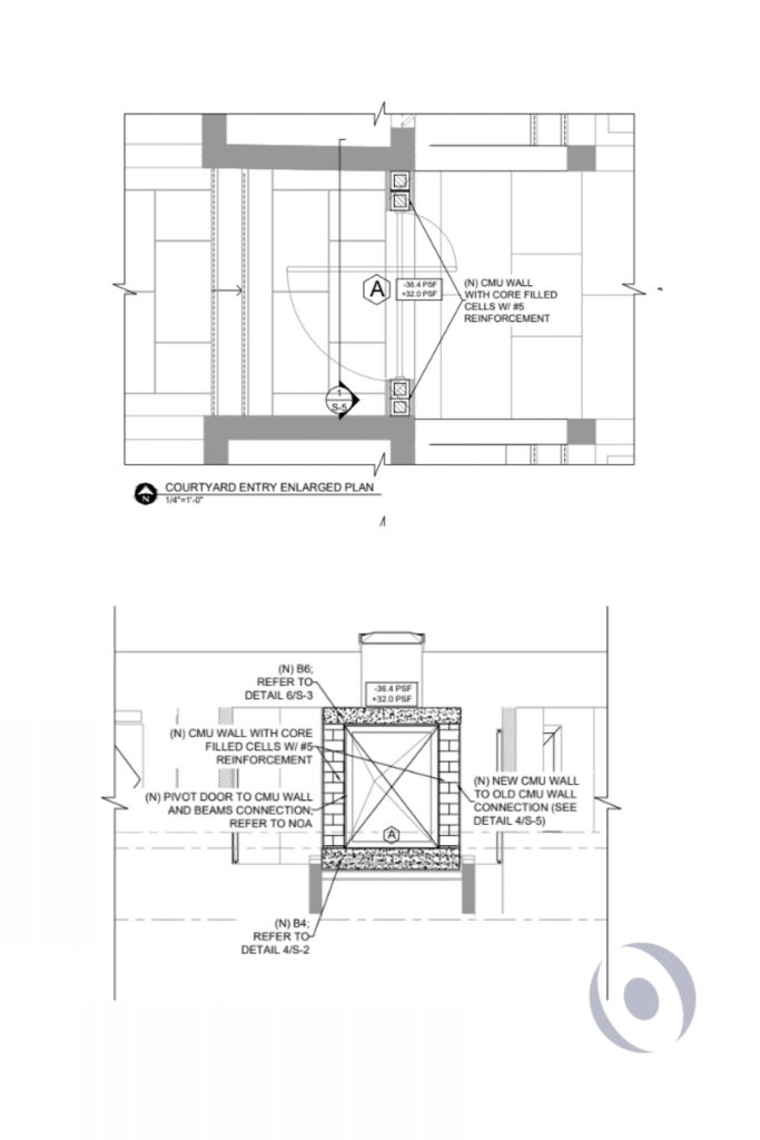
Our team also inspected CMU wall construction and structural infill, verifying reinforcement within filled cells, wall-to-beam connections, and integration with existing structural elements. Structural modifications associated with architectural features such as entry systems, courtyard openings, and gate supports were reviewed to ensure proper execution and compliance with engineered details.
In addition, inspections were performed on existing structural components requiring repair or modification, including verification of connection conditions, doweling into existing concrete, and preparation for new structural integration.
Throughout construction, we worked closely with contractors in the field to identify discrepancies early, provide practical solutions, and maintain project momentum without compromising structural integrity. All findings were documented through clear, professional inspection reports suitable for permitting and project closeout.
Our Approach
- Discreet and professional service for private residential projects
- Proactive coordination with contractors and project teams
- Thorough, detail-driven verification of structural work
- Code-compliant documentation aligned with FBC, ACI, and ASCE standards
What We Inspect
- Reinforced concrete (slabs, beams, stairs, foundations)
- CMU walls and structural infill systems
- Structural steel and anchorage systems
- Deep foundations (helical piles / pin piles)
- Retaining walls and load-bearing elements
- Structural connections to existing structures
Why Clients & Contractors Trust Us
- Precision-driven inspections with attention to detail
- Clear communication and practical field solutions
- Efficient turnaround to support construction schedules
- Experience with complex residential structural modifications











